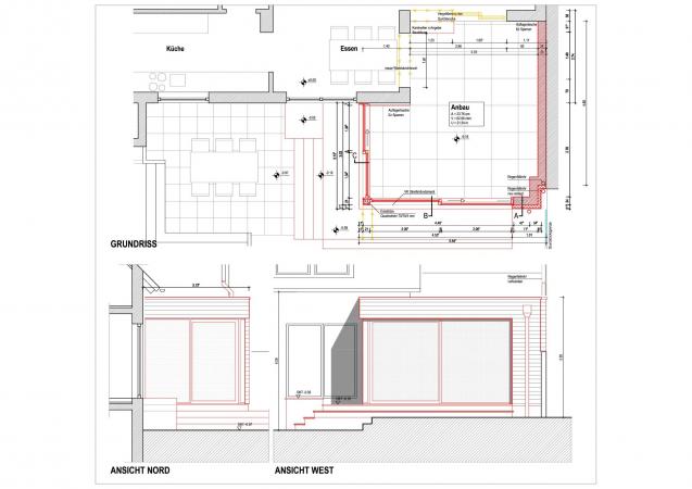
'Wohnbox'

Objekt
Anbau an ein Wohnhaus
Lage
Hemmingen bei Hannover
Wohnfläche
25 qm
Grundstücksgröße
-
Baujahr
2013
Baukosten
70.000 EUR
Leistungen
Leistungsphasen 1 -9
Beschreibung

Die Bauherrschaft wünschte sich einen Ersatz für einen unbeheizten Wintergarten mit Bezug zum Außenraum. So entstand eine kubisch ausformulierte ‚Wohnbox‘ als vollwertige, beheizte Wohnraumerweiterung. Die Fassade öffnet sich mit Glasschiebetüren großzügig zum Garten, durch große Durchbrüche in den Außenwänden des Wohnhauses werden fließende Übergänge zu den angrenzenden Innenräumen geschaffen.