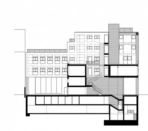
Wohn- und Geschäftshaus

Lage
Köln Kalk
Baujahr
1998